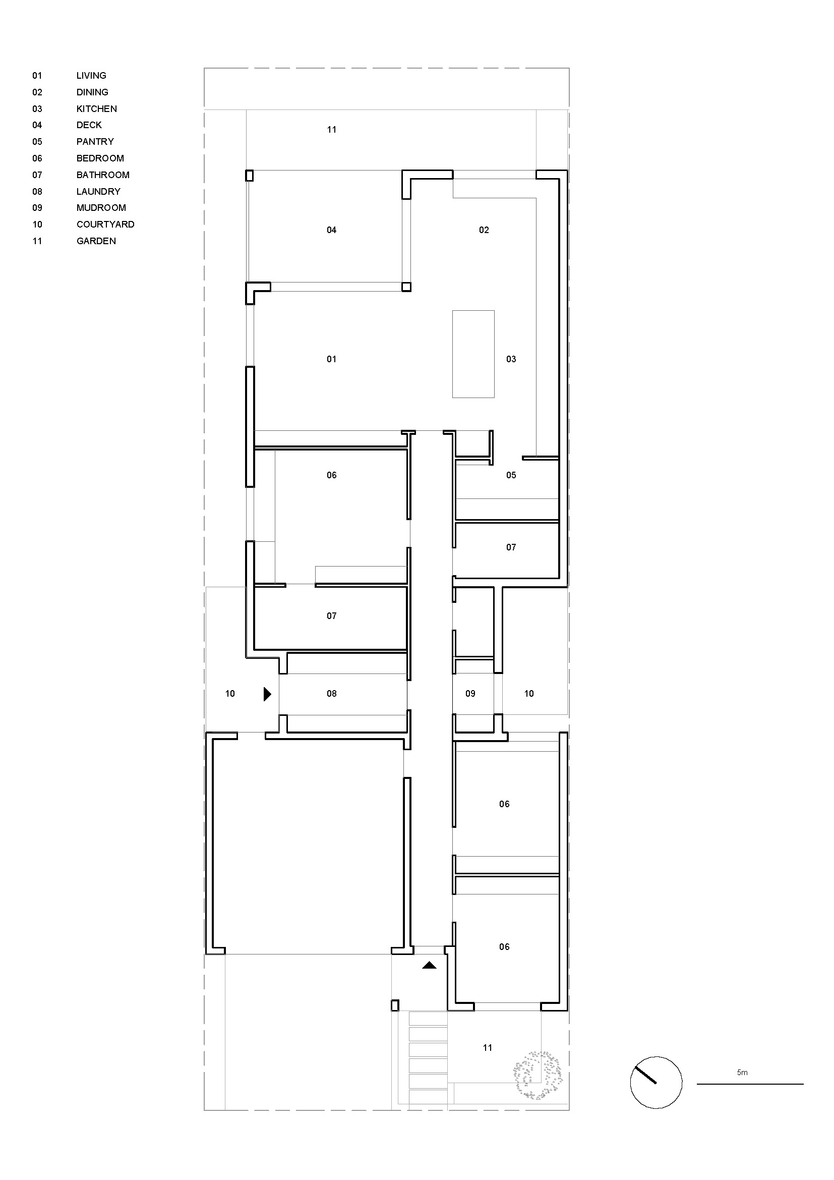
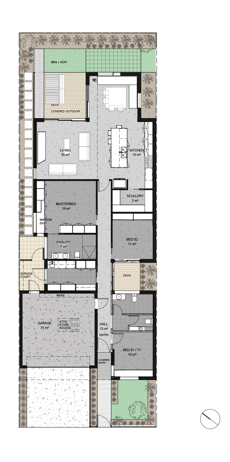
ABOUT       WORKS      CONTACT     
2022
Success
New build

198m2

Design development