ABOUT       WORKS      CONTACT     
2022
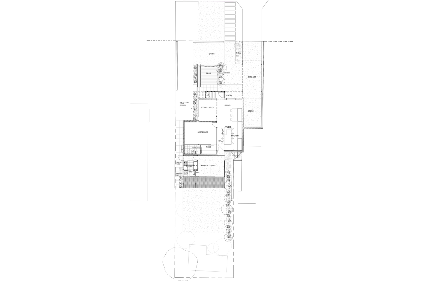
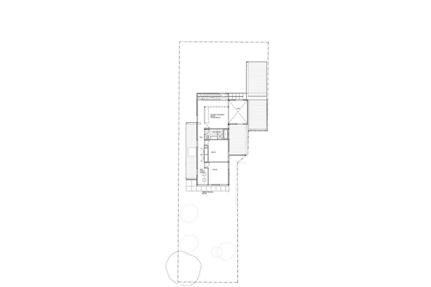
Palmyra
Alterations and Addition

196 m2

Under construction