ABOUT       WORKS      CONTACT     
2017
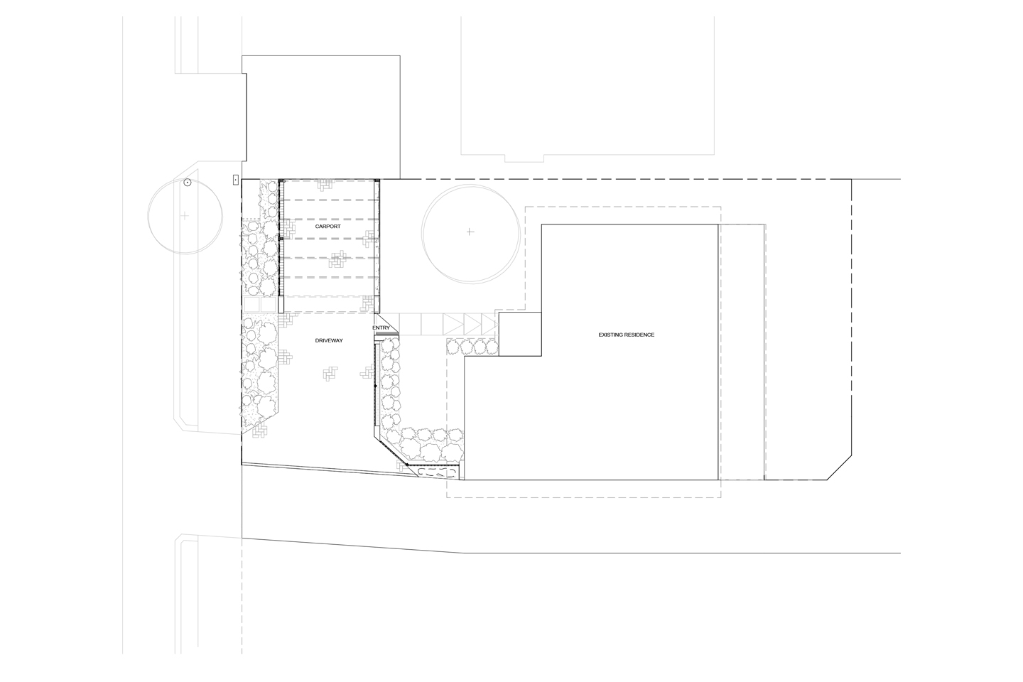
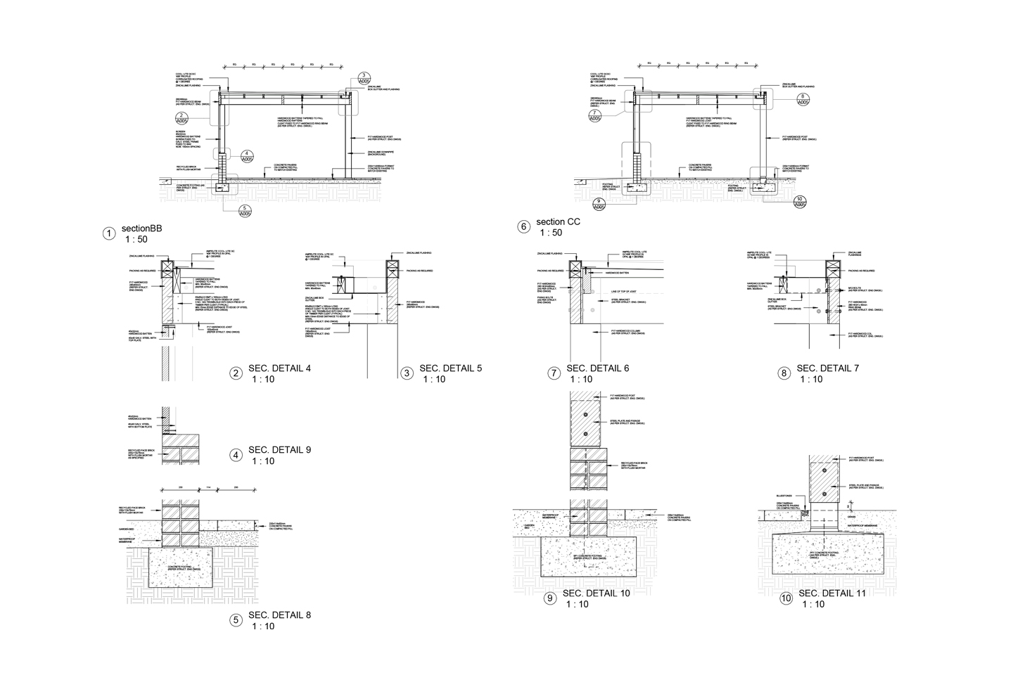
East Fremantle
Addition

 30m2

Completed