ABOUT       WORKS      CONTACT     
2022
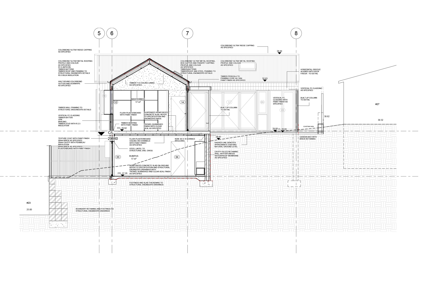
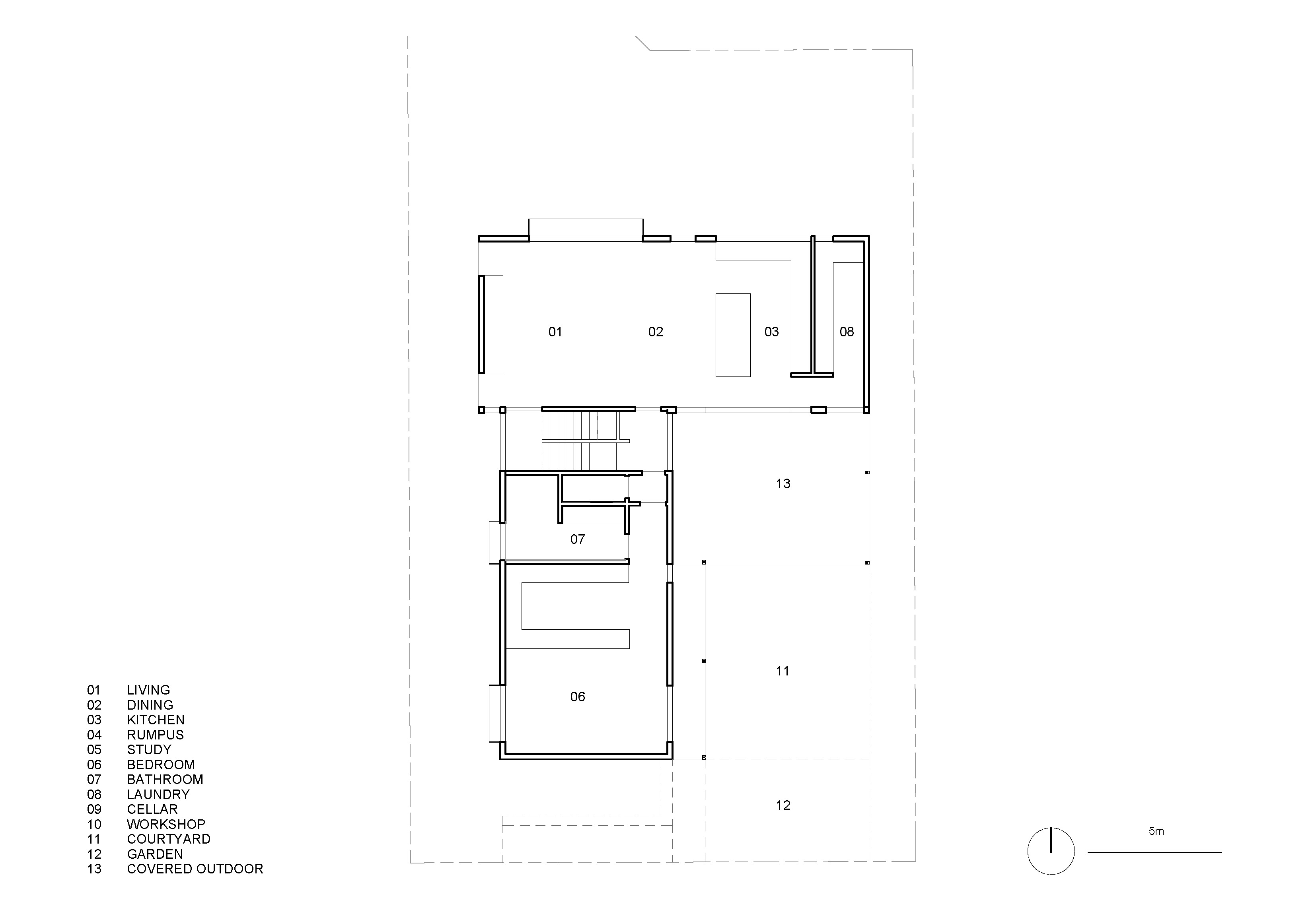
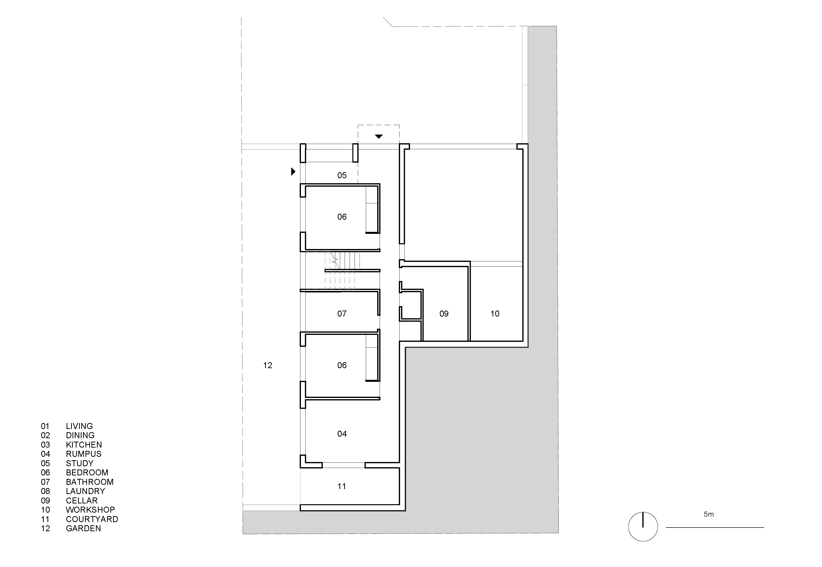
Coogee
New build


140m2

Tender