ABOUT       WORKS      CONTACT     
2016
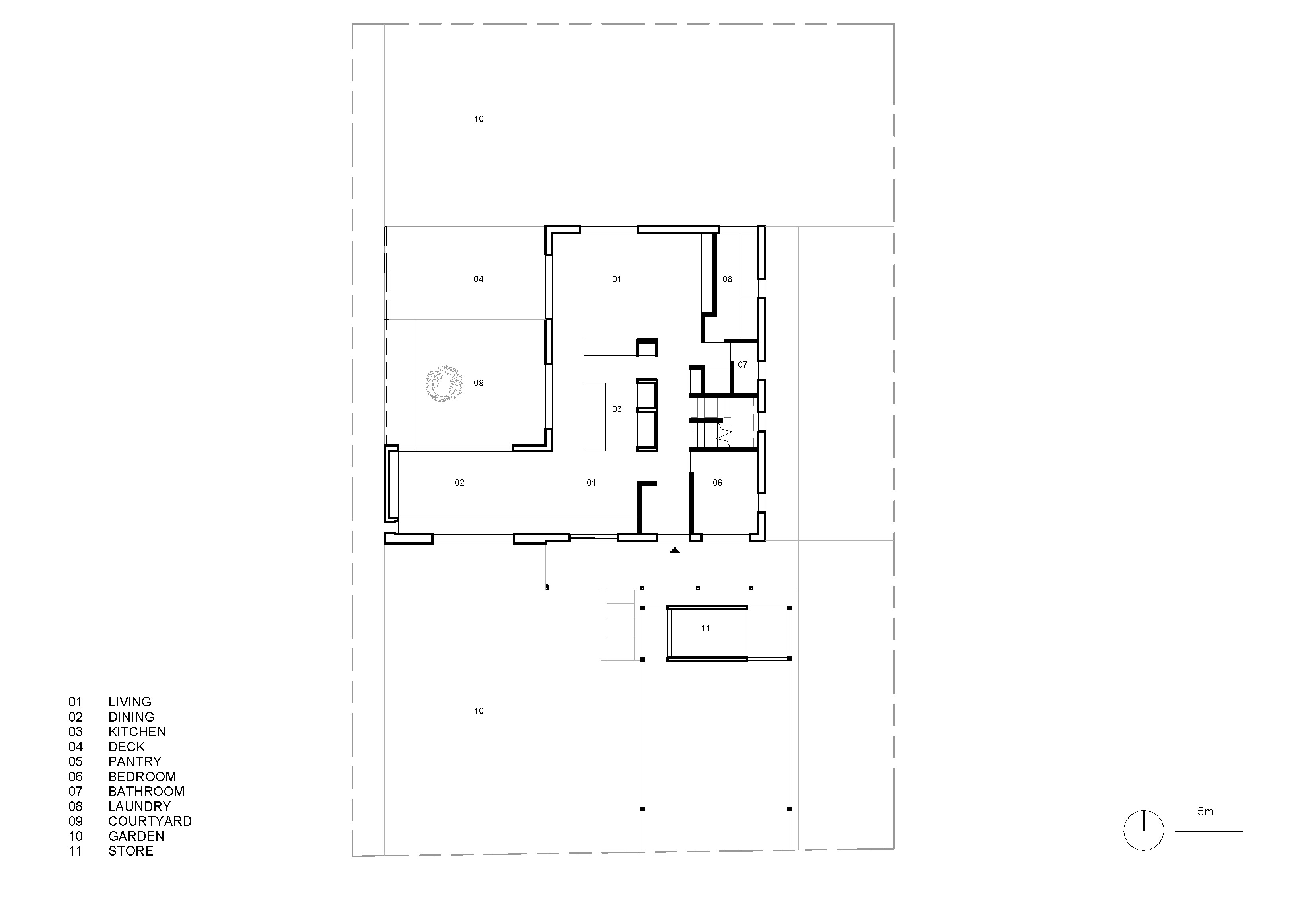
Wembley Downs
Alterations and additions
 
148m2

Completed