ABOUT       WORKS      CONTACT     
2020-
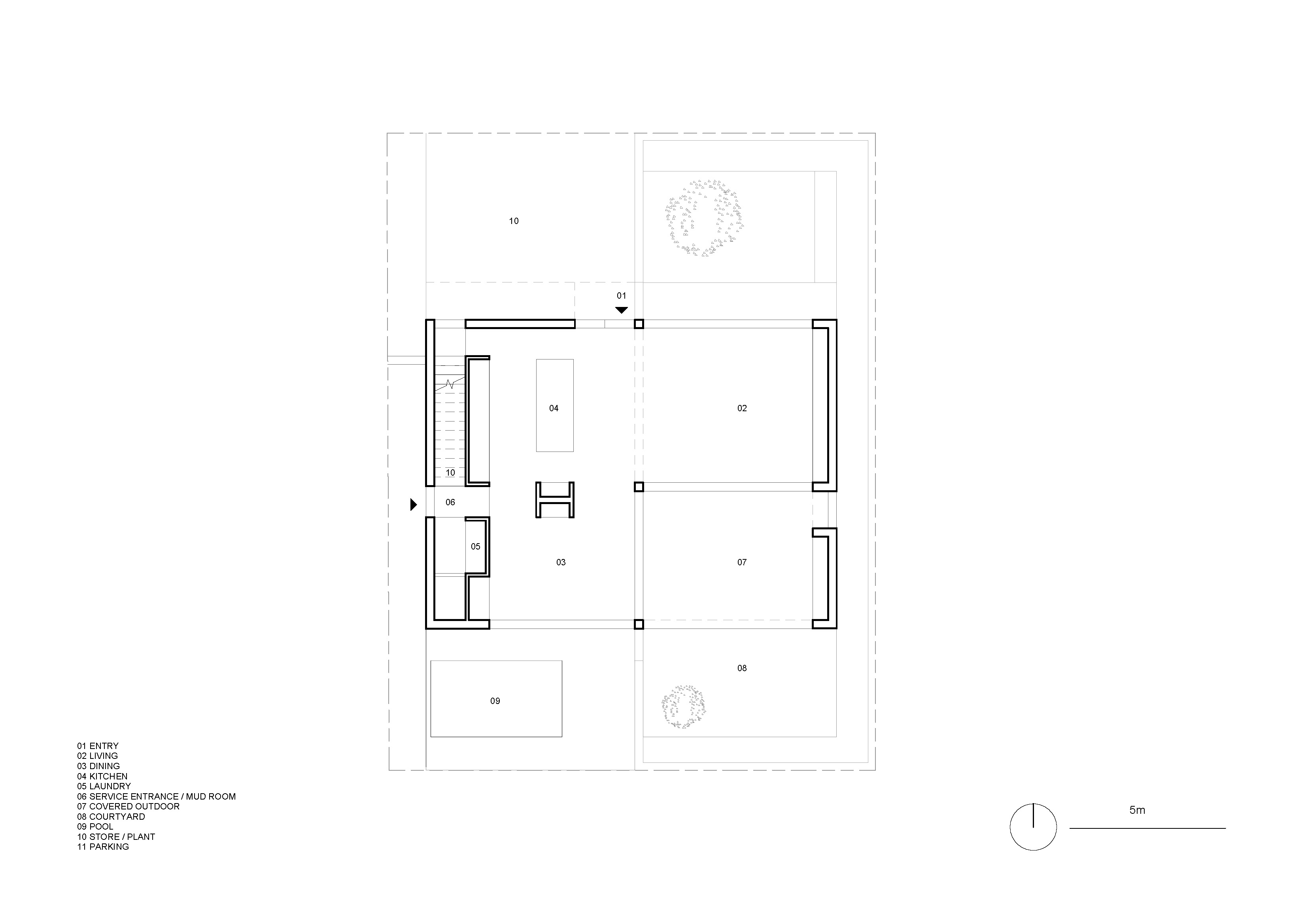
South Fremantle
New build


150m2

Tender