ABOUT       WORKS      CONTACT     
2022
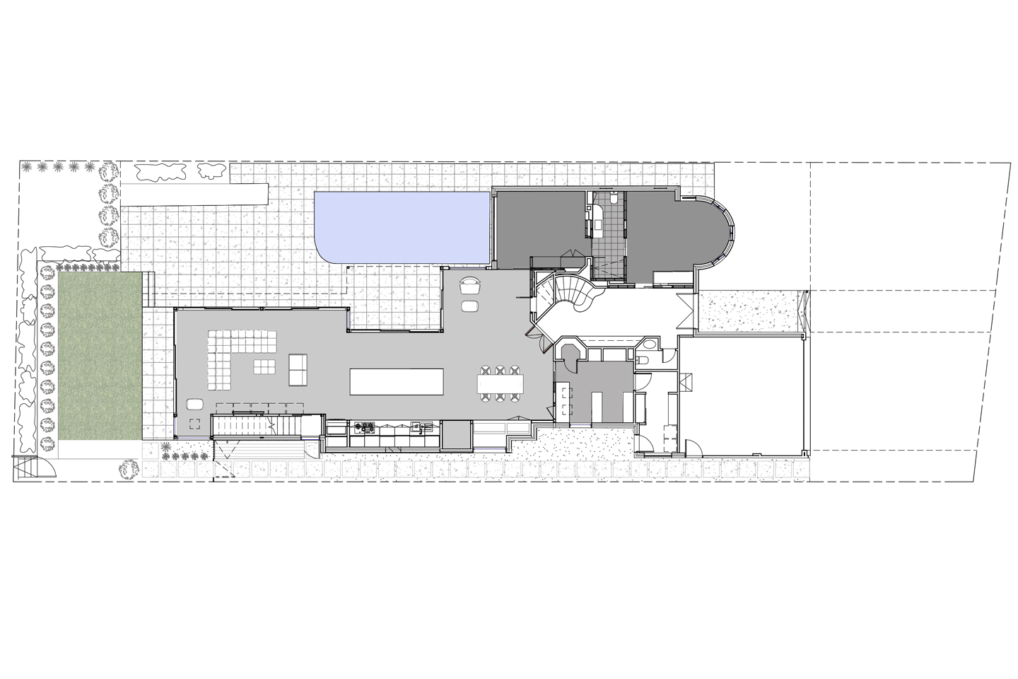
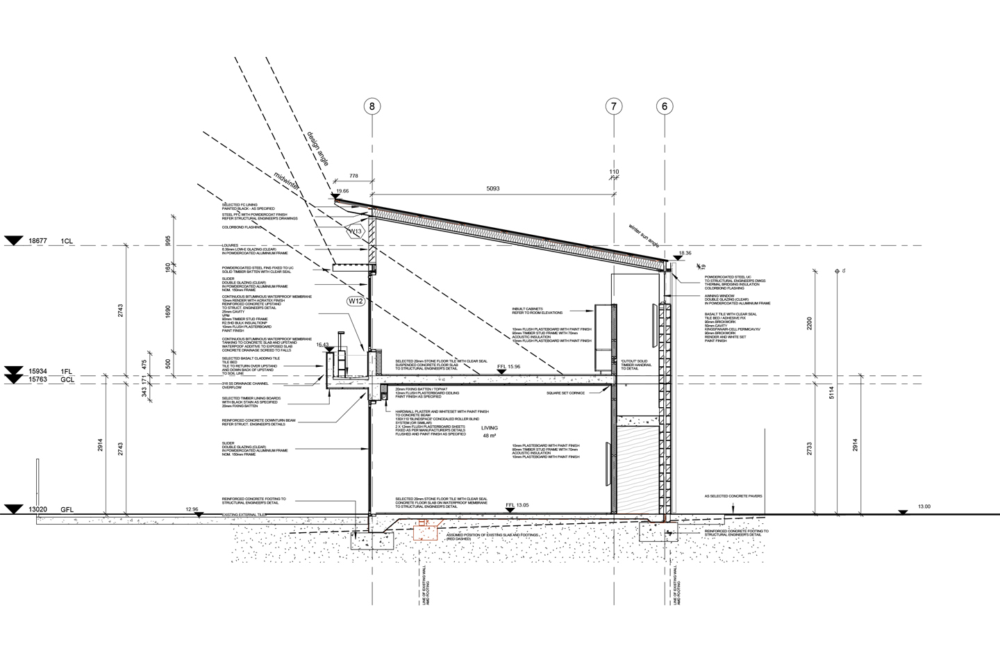
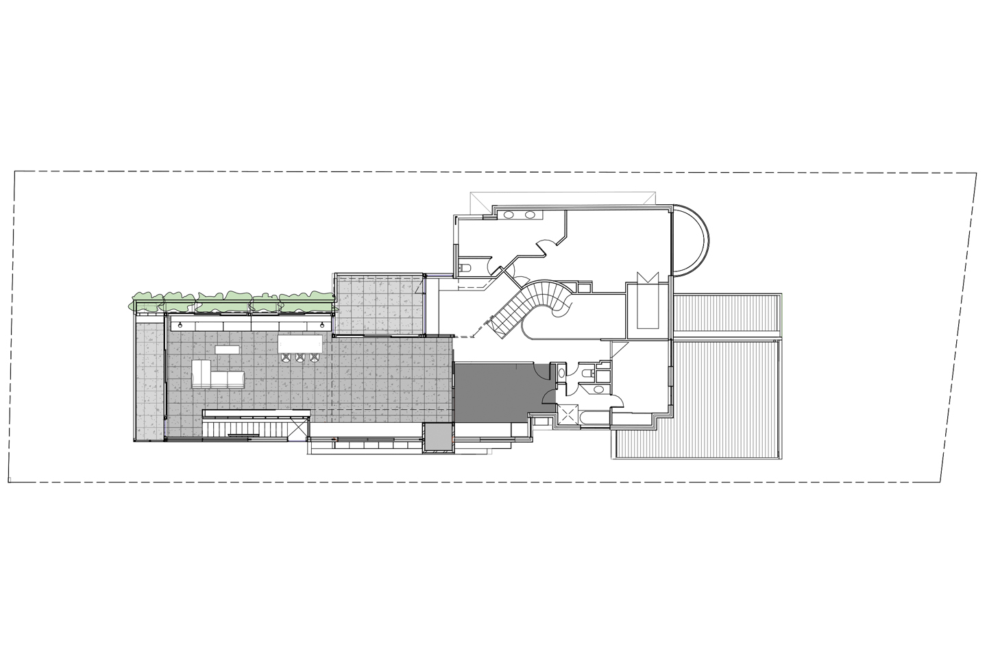
City Beach
Alterations and addition
 
200m2

Under construction