ABOUT       WORKS      CONTACT     
2016
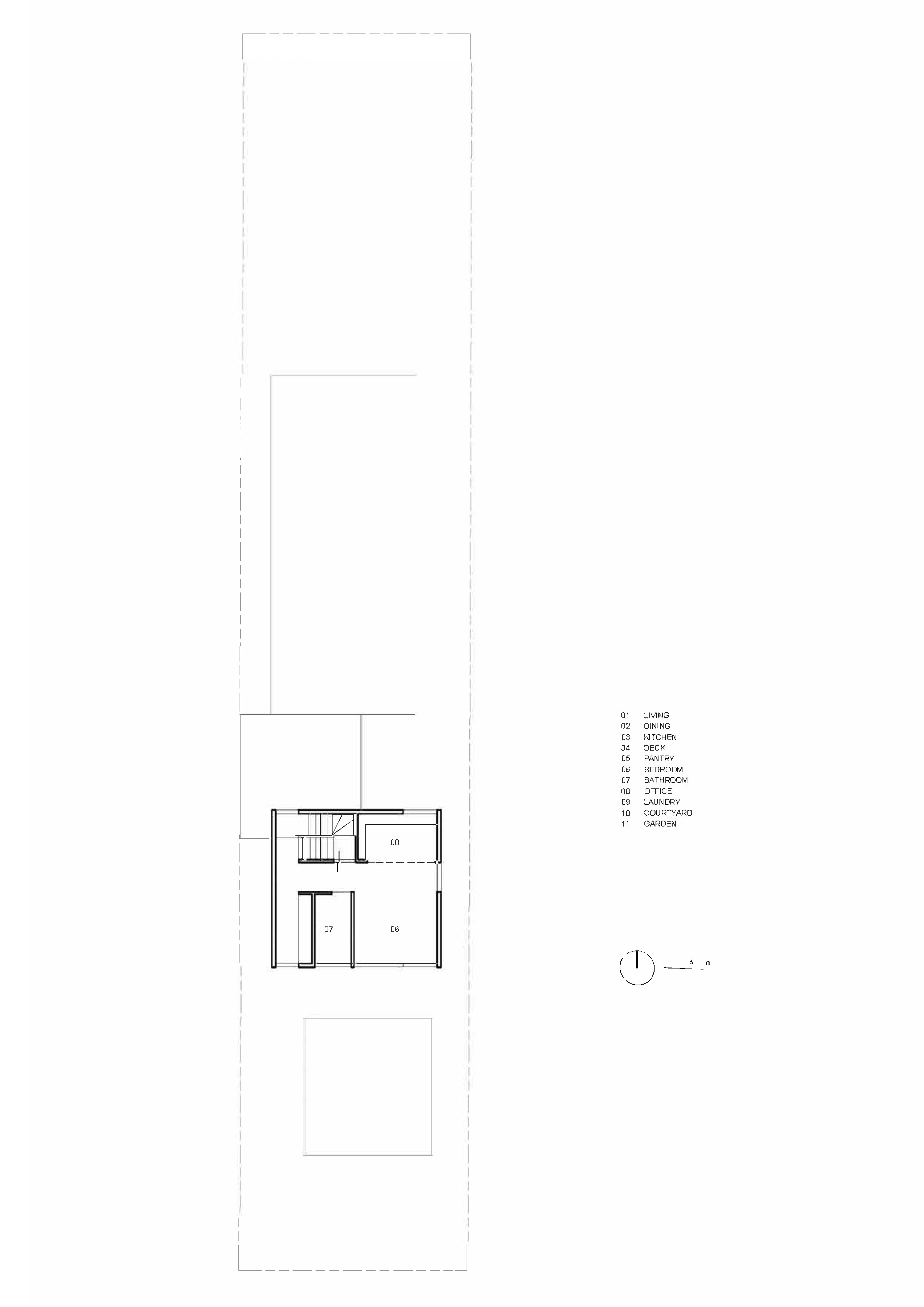
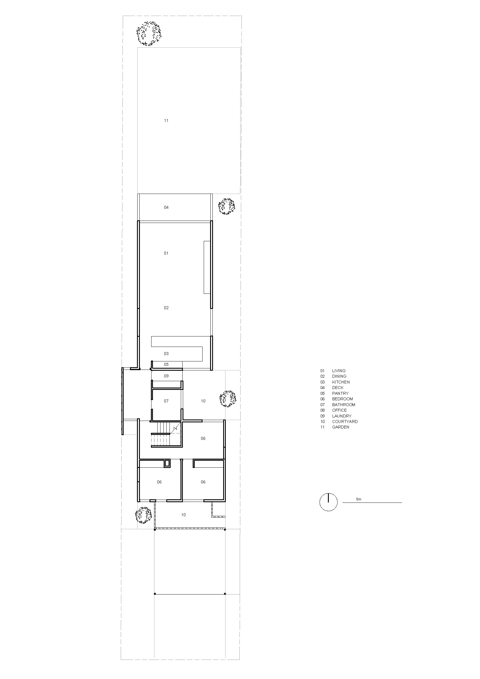
White Gum Valley
New build

150m2

Completed