ABOUT       WORKS      CONTACT     
2022
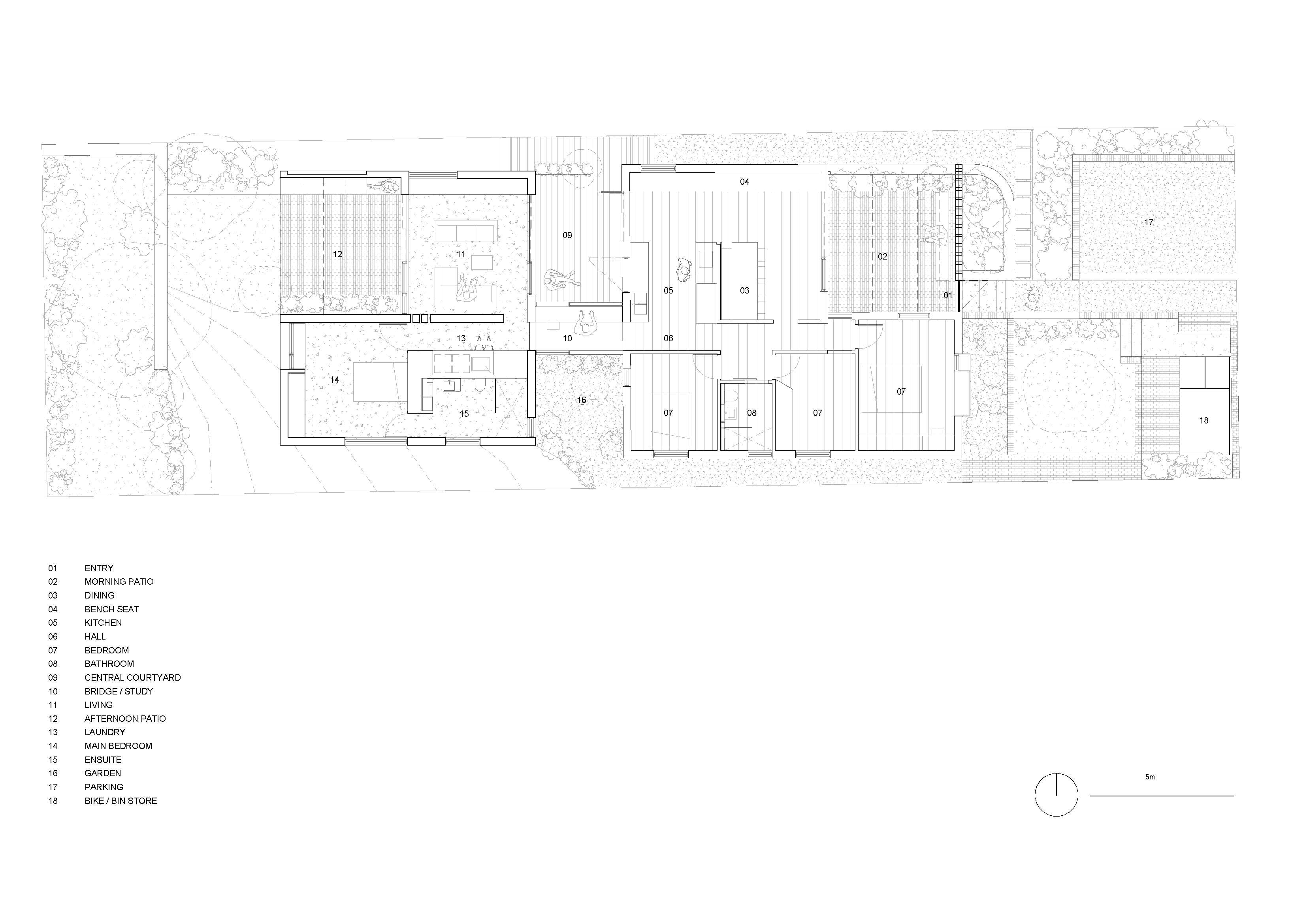
East Fremantle
Alteration and addition
 

164m2

Complete